Готовые блоки из стекла и алюминия с двойным витражом
Тёплый алюминиевый дверной блок i-Doors External со структурным остеклением
Тёплый алюминиевый дверной блок со структурным (безрамным) остеклением с фасадной стороны, изготовлен из алюминиевого профиля, тёплой системы ALTW-72, используется трёхкамерный профиль повышенной теплоизоляции толщиной 72мм.

Дверь предназначена для установки на внешний защитный тепловой контур частных загородных домов и общественных зданий.

Технические характеристики:
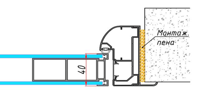
Принципиальный горизонтальный разрез двери I-Doors External:

Принципиальный вертикальный разрез двери I-Doors External:


Допустимые габаритные размеры входной группы в составе витража, по коробке (рамы) изделия составляют: 2800мм высотой, 2600мм шириной. Для установки в качестве основной двери во внешний контур жилого и не жилого здания рекомендуется только одностворчатое исполнение.
Размеры полотна:
- толщина полотна 72мм;
- максимальная высота полотна 2400мм;
- максимальная ширина полотна 1115мм;
Цвет фурнитуры: шлифованная нержавеющая сталь;
Петли: роликового типа под дверной паз, производство Dr.Hahn (Германия), количество от 3шт
Вид стеклопакета: двухкамерный стеклопакет толщиной 48мм с закалёнными внешними стёклами.

Вид внешнего структурного стекла: структурное закалённое стекло толщиной 6мм, архитектурное с напылением или тонированное в массе (по желанию заказчика)

Устанавливаемая фурнитура:
- дверь комплектуются механическим многозапорным замком;
- комплектуется с внешней стороны двери (структурной) ручкой-трубой WALA (Польша), высотой от 1600мм, со скосом;
- комплектуется с внутренней стороны двери нажимным гарнитуром, из шлифованной нержавеющей стали, узкопрофильного типа на раздельных розетках;
- возможна установка замка с функцией автоматического отпирания и запирания;
- дверь включает в себя усиленный нижний двойной дверной порог с терморазрывом и двухконтурным резиновым уплотнением;
- возможно оснащение двери системой СКУД, с со всеми существующими типами доступа (в том числе NFC, GSM, Face id);

Цвет конструкции: окраска створки и рамы в любой цвет по каталогу RAL;
Дополнительная информация:
- в комплектации автоматического режима запирания требуется подведение Заказчиком электрического питания к устанавливаемой входной группе;
- дверь комплектуется теплым подставочным профилем Trioterm (Германия), в сочетании с гибридным полимером Puroflex (Австрия), высотой 100мм, предназначенным для установки всего изделия непосредственно на стяжку в период строительства здания (сооружения). «Высота подставочного профиля может варьироваться»;
- дверную створку можно оснастить скрытым доводчиком GU (Германия) с функцией ФОП и ограничения открывания;
- дверь соответствует норме звукоизоляции в 48 дБ;
- коэффициент теплоизоляции превышает показатели обычного оконного и дверного блока, за счет выполнения дополнительного структурного закалённого стекла, толщиной 6мм к используемому стеклопакету;

Преимущества установки дверного блока I-Doors External:
- может изготавливаться под индивидуальный проем, и не требует специальной подготовки стены;
- показатели тепло и звукоизоляции выше, чем у обычных дверных блоков;
- дизайнерский внешний вид;
- безопасное внешнее стекло, которое можно выполнить любого цвета и применить любые существующие архитектурные стёкла;
- тип рамы Z-образный, позволяет сочетать изделие с любым четвертным или прямым строительным проемом и интегрируется с любым типом вентилируемого фасада существующего здания;
- комплектация двери может легко меняться по согласованию с заказчиком;
Сроки изготовления и гарантийные обязательства:
- срок изготовления одностворчатой двери составляет до 60 календарных дней;
- срок изготовления входной группы с глухими секциями составляет до 90 календарных дней;
- гарантия на изделие составляет 2 года, гарантия на замки, ручки и механизмы составляет 1 год.
Цены на i-Doors External
- Дверь I-Doors External одностворчатая: 297 250 ₽
- Глухое остекление к I-Doors External: 76 850 ₽
- Комплект автоматического открывания для I-Doors External: 67 500 ₽
- СКУД с GSM модулем для I-Doors External: 30 000 ₽
Двери i-Doors для внутреннего применения
Создавая серию дверей i-Doors нами двигало желание разработать практичную и надежную дверь с привлекательным внешним видом. Двери этой серии получили два основных заполнения, первое безопасное каленое стекло, второе трудно горючая композитная алюминиевая панель.
Профиль для дверных полотен i-Doors получился надёжным, технологичным и отвечающим всем требованиям поставленной задачи.
После изысканий и проектирования мы создали новую линейку готовых дверей в профиле AL-1576.


Дверной блок серия i-Doors
Дверной профиль для двери в стандартном варианте изготавливается в сером цвете - RAL 9006. Полотна устанавливаются на двухсекционные петли во все типы дверных рам для полотен толщиной 40мм.
Варианты расположения полотен серии i-Doors с стеклянным заполнением в различные типы систем и в строительные проёмы
Дверной блок с двойным стеклянным заполнением - коробка в каркасную перегородку

Дверной блок с двойным стеклянным заполнением - коробка накладная в строительный проём

Дверной блок с двойным стеклянным заполнением - коробка обжимная в строительный проём

Варианты расположения полотен серии i-Doors с глухим заполнением в различные типы систем и в строительные проёмы
Дверной блок с двойным глухим заполнением - коробка в каркасную перегородку

Дверной блок с двойным глухим заполнением - коробка накладная в строительный проём

Дверной блок с двойным глухим заполнением - коробка обжимная в строительный проём

В дверных блоках i-Doors в качестве глухого заполнения полотен использованы алюминиевые огнестойкие панели толщиной 4 мм с внутренним уплотнением.
Алюминиевые огнестойкие панели могут иметь различные варианты отделки поверхности
Металл: имитация грубо обработанной (брашированной) поверхности металла.

Патина/Кортен: имитация патинированных металлов
КАМЕНЬ: имитация отполированной поверхности различных видов натурального камня
ДЕРЕВО: имитация текстуры натуральных пород деревьев
Покраска по шкале RAL Шагрень на ощупь шероховатая поверхность
Чистый цвет окраска по шкале RAL более 2500 цветов

Двери серии i-Doors могут изготавливаться в сочетании с любым из указанных заполнений выбранным заказчиком с использованием дверного профиля окрашенным в цвет панелей с серийным комплектом фурнитуры.
Фото дверных блоков i-Doors

Стоимость дверных блоков i-Doors
Дверной блок i-Doors 760/2000 цвет 9006, глухое заполнение композит FR. Фурнитура - матовая нержавейка.
Цена: от 19100 руб.
Дверной блок i-Doors 800/2000 цвет 9006, стекло прозрачное. Фурнитура - матовая нержавейка.
Цена: от 17320 руб.
Посмотрите i-Doors на видео
Плавный ход двери при работе доводчика. Элегантный внешний вид и непревзойденный срок службы - более 30 лет.